2024_06 studie, dokumentace pro stavební povolení, realizace
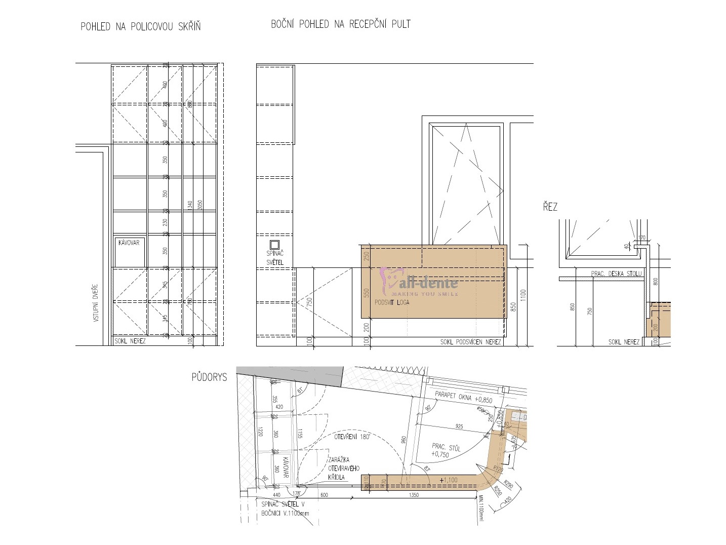
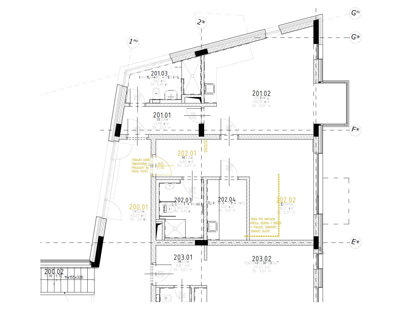
Zubní ordinace sídlící v bytovém domě v Kobylisích se rozhodla rozšířit své služby o stálé místo pro dentální hygienu. Toho se podařilo dosáhnout přesunutím recepce do prostoru chodby a jejím oddělením novou protipožární příčkou, čímž se zvětšila celková využitelná plocha ordinace. V rámci projektu byla tato dispoziční změna projednána se stavebním úřadem. Součástí návrhu byl také nový nábytek na míru: v ordinaci dentální hygieny vznikla moderní pracovní linka a šatní skříň, zatímco v nové recepci přibyl funkční recepční pult a lavice pro čekající pacienty.







